Drexel University
Department of Architecture, Design & Urbanism, Drexel University
Adjunct Teaching Professor, 2014-2017
Assistant Teaching Professor, 2017 - 2018
Drexel University
Department of Architecture, Design & Urbanism
Assistant Teaching Professor, 2017 - 2018; Adjunct Teaching Professor, 2015 - 2017
Conceptual: Interior Spatial Volumes and Form making
Taught with Professor Nicole Koltick
OBJECTIVES
Students explored analog and digital methods of design ideation and representation through a series of spatial propositions that empower them to think critically about the role of conceptual design narratives and how they contribute to design development. Throughout the course students develop an attitude about design that arises from observation, analysis, research and extensive iteration in both drawing and models and further their understanding of the nuance and subtlety of spatial design through a series of design opportunities focusing on threshold, procession, and contemplation.
Repository
3ds Max & Photoshop
Repository
3ds Max & Illustrator
Repository
3ds Max & Illustrator
Repository
3ds Max & Photoshop

Repository
Physical Model
Repository
3ds Max & Photoshop
Repository
3ds Max & Photoshop
Repository
3ds Max & Photoshop
Repository
Physical Model
Repository
3ds Max & Illustrator
Repository
Physical Model
Repository
3ds Max & Photoshop
Repository
3ds Max & Photoshop
Procession
Physical Model & Hand Drawing
Procession
Hand Drawing
Procession
Physical Model & Axonometric Drawing
Portal
Physical Models
Portal
Hand Drawing
Portal
Physical Model & Hand Drawing
Procession
Physical Model

Procession
Physical Model & Hand Drawing

Procession
Physical Model

Procession
Physical Model
Creative Representation and Hybrid Visualization Techniques
OBJECTIVES
Students develop competency in computer generated orthographic drawings using AutoCAD and 3-D Modeling using SketchUp Pro to understand the workflow process in transitioning from multiple computer programs. Students are able to produce competent presentation drawings across a range of appropriate media and apply a variety of communication techniques and technologies appropriate to a range of purposes and audiences to develop a personal graphic style that informs the production of computer generated drawings and imagery.
Rendering Visions
Revit with Photoshop
Rendering Visions
Revit with Photoshop
Rendering Visions
Revit with Photoshop
Narrative Visions
Hand Drawing with Photoshop
Narrative Visions
Hand Drawing with Photoshop
Hybrid Rendering
SketchUp & Photoshop
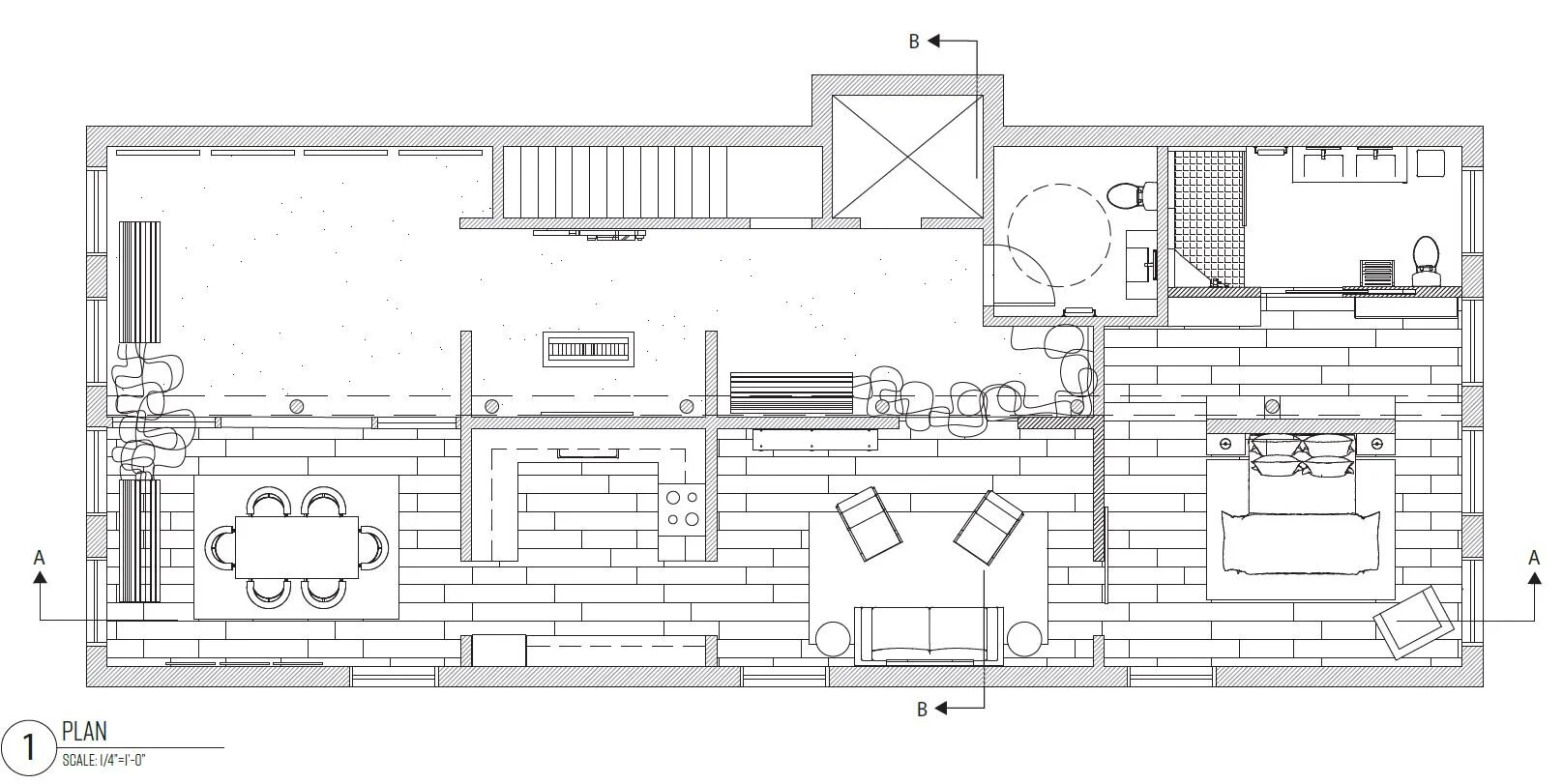
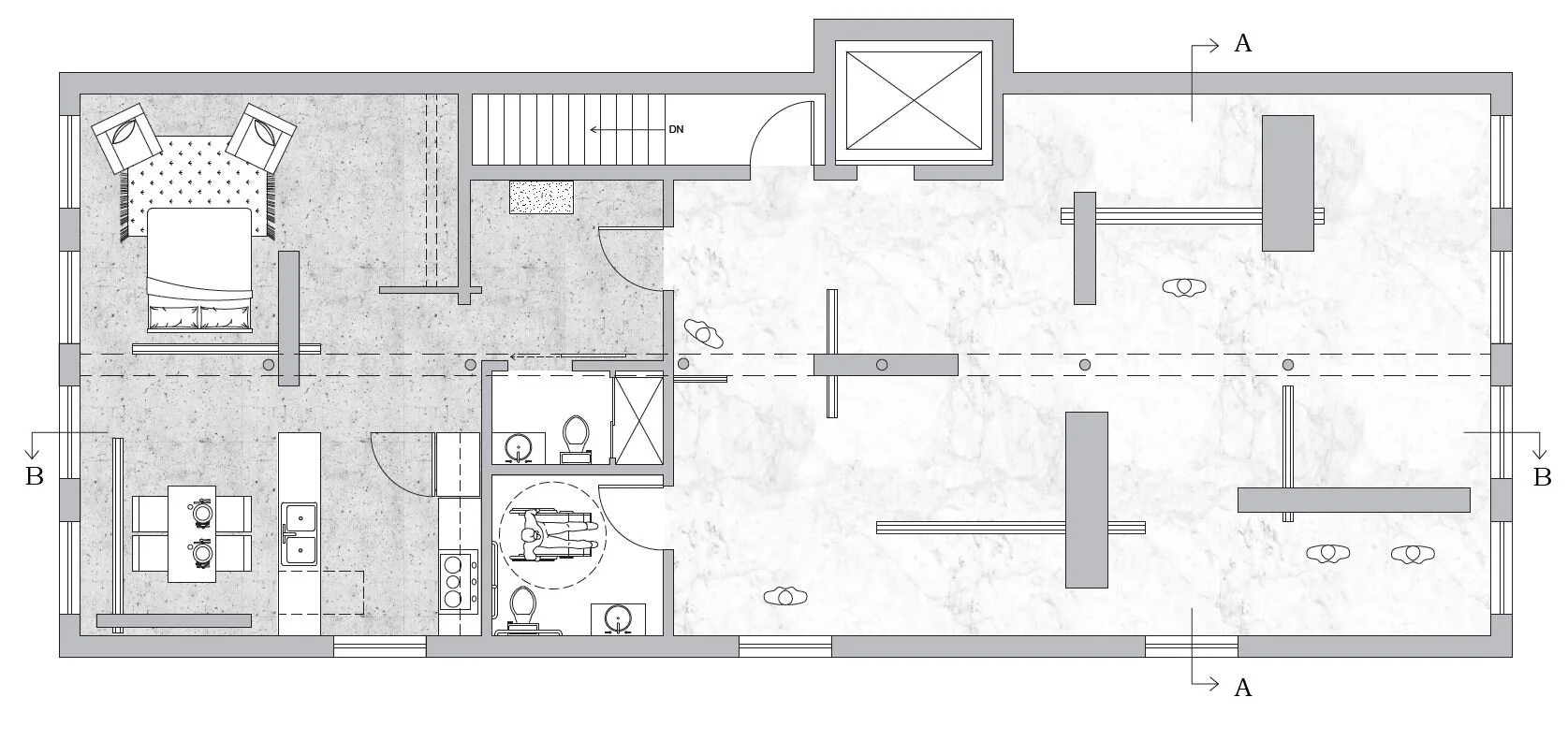
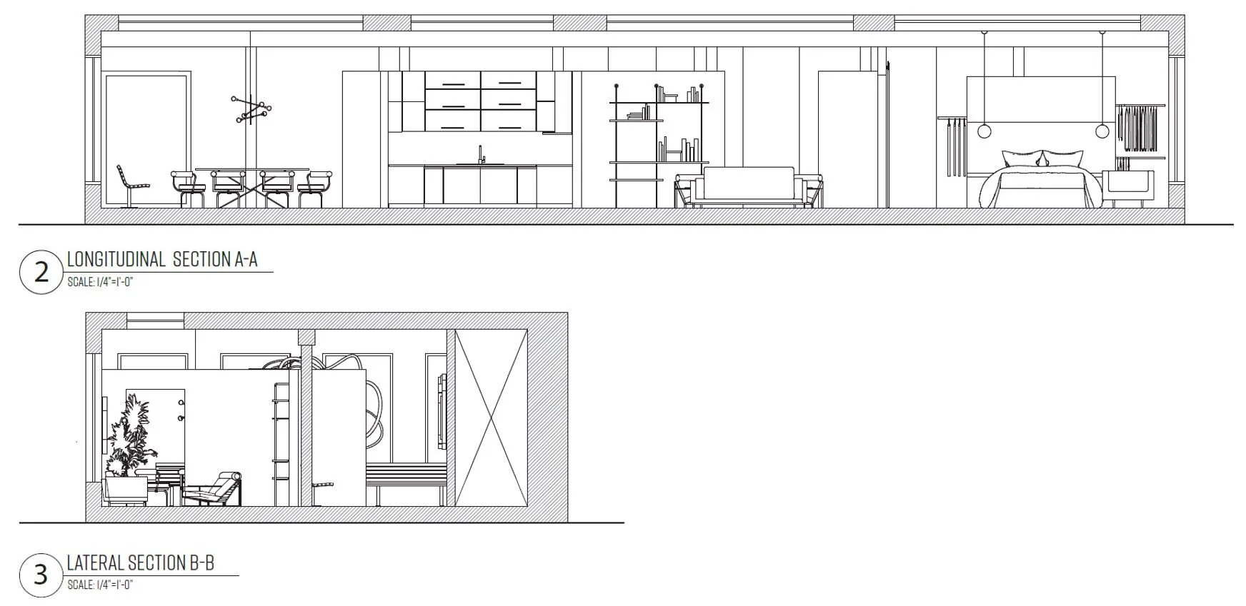
AutoCAD, SketchUp, Adobe, and Computer Rendering
OBJECTIVES
Students develop competency in computer generated orthographic drawings using AutoCAD and 3-D Modeling using SketchUp Pro to understand the workflow process in transitioning from multiple computer programs. Students are able to produce competent presentation drawings across a range of appropriate media and apply a variety of communication techniques and technologies appropriate to a range of purposes and audiences to develop a personal graphic style that informs the production of computer generated drawings and imagery.
Introduction to Graphic Representation for Interior Design
OBJECTIVES
Students develop an understanding of the fundamentals of visual communication and employ a variety of communication techniques appropriate for a range of purposes, audiences, and contexts. They also learn a design vocabulary that will encourage discussion and productive discourse around the media products they produce while cultivating a graphic identity through custom graphic pattern development, logo design, and branding vision.
Graphic Identity Project
Adobe Photoshop & Illustrator
Interior Rendering with Custom Graphics
Adobe Photoshop & Illustrator
Business Card Design
Adobe Illustrator
Menu Design
Adobe Illustrator
Graphic Identity Project
Adobe Photoshop & Illustrator
Interior Rendering with Custom Graphics
Adobe Photoshop & Illustrator
Graphic Identity Project
Adobe Photoshop & Illustrator
Graphic Identity Project
Adobe Photoshop & Illustrator
Interior Rendering with Custom Graphics
Adobe Photoshop & Illustrator
Business Card Design
Adobe Illustrator
TEACHING ASSISTANT
Digital Fabrication (designfutureslab.com)
Taught by Professor Nicole Koltick
OBJECTIVES
Students learn how to use computational design tools to explore digital fabrication